工程机械与起重机BBS

 找回密码
 注册会员

扫描二维码登录本站

搜索
查看: 1932|回复: 11

再发神器

[复制链接]
发表于 2012-12-18 18:56 | 显示全部楼层 |阅读模式
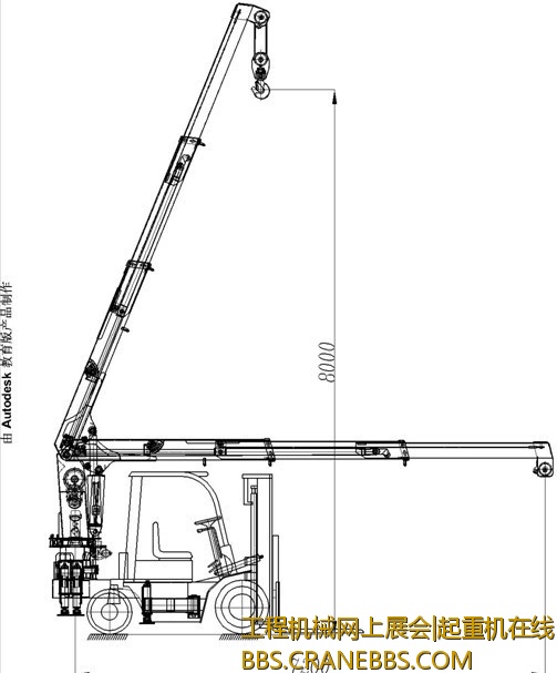
现在神器越来越多,搞得心痒痒的 未命名.jpg 未命名1.jpg 照片 001.jpg 照片 002.jpg
回复

使用道具 举报

 楼主| 发表于 2012-12-18 18:57 | 显示全部楼层
自己顶,真想采购一台来试试
回复 支持 反对

使用道具 举报

发表于 2012-12-18 19:13 | 显示全部楼层
起重量这么低,成本高。不如单开叉车划算
回复 支持 反对

使用道具 举报

发表于 2012-12-18 19:15 | 显示全部楼层
:victory::victory:
回复 支持 反对

使用道具 举报

发表于 2012-12-18 19:16 | 显示全部楼层
没多大用途
回复 支持 反对

使用道具 举报

发表于 2012-12-18 19:49 | 显示全部楼层
实用价值不高
回复 支持 反对

使用道具 举报

发表于 2012-12-18 20:08 | 显示全部楼层
厉害
回复 支持 反对

使用道具 举报

发表于 2012-12-18 20:16 | 显示全部楼层
高高高高
回复 支持 反对

使用道具 举报

发表于 2012-12-18 21:42 | 显示全部楼层
关键用叉车的时候大臂影响啊
回复 支持 反对

使用道具 举报

发表于 2012-12-18 22:01 | 显示全部楼层
:):):)
回复 支持 反对

使用道具 举报

 楼主| 发表于 2012-12-19 14:21 | 显示全部楼层
15W左右
回复 支持 反对

使用道具 举报

发表于 2012-12-19 14:51 | 显示全部楼层
lixiuwang5065 发表于 2012-12-18 21:42 static/image/common/back.gif
关键用叉车的时候大臂影响啊

说的没错
回复 支持 反对

使用道具 举报

您需要登录后才可以回帖 登录 | 注册会员

本版积分规则

Archiver|手机版|工程机械与起重机BBS ( 沪ICP备2025134921号 )

GMT+8, 2026-4-26 08:57 , Processed in 1.155992 second(s), 22 queries .

Powered by Discuz! X3.4

© 2001-2023 Discuz! Team.

快速回复 返回顶部 返回列表