工程机械与起重机BBS

 找回密码
 注册会员

扫描二维码登录本站

搜索
楼主: yuansl

GROVE GTK1100运输、组装、施工过程及性能全程奉献

[复制链接]
 楼主| 发表于 2013-5-4 12:45 | 显示全部楼层
四个拉杆支撑架是可以GTK1100自己安装的
吊装支腿.jpg
回复 支持 反对

使用道具 举报

 楼主| 发表于 2013-5-4 12:51 | 显示全部楼层
支架自安装图
支架自安装2.jpg
支架安装1.jpg
回复 支持 反对

使用道具 举报

 楼主| 发表于 2013-5-4 12:54 | 显示全部楼层
支架安装好起升,拉杆张紧
起升.jpg
回复 支持 反对

使用道具 举报

 楼主| 发表于 2013-5-4 12:57 | 显示全部楼层
简单,快捷
6小时组装完成
安装完毕.jpg
完工后风叶吊装.jpg
回复 支持 反对

使用道具 举报

 楼主| 发表于 2013-5-4 13:00 | 显示全部楼层
塔身最高可达76.5米,由6节伸缩体构成。
上车起重机的主臂最长可延伸60米,最大臂尖起升高度可达140米
完工.jpg
回复 支持 反对

使用道具 举报

发表于 2013-5-4 17:56 来自手机 | 显示全部楼层
漂亮的好车
回复 支持 反对

使用道具 举报

 楼主| 发表于 2013-5-7 09:20 | 显示全部楼层
上车结构和GMK7450很相似,底部换成了绞车箱
上车.jpg
回复 支持 反对

使用道具 举报

 楼主| 发表于 2013-5-7 09:25 | 显示全部楼层
从这个控制单元完成对起重机的操作,安置在手推车上,通过电缆和起重机相连。

操作方式类似于远程操作起重机,在上车起重机上装有2个摄像头,可了解上部的信息。
控制单元.jpg
2个显示屏.jpg
回复 支持 反对

使用道具 举报

 楼主| 发表于 2013-5-7 10:59 | 显示全部楼层
高耸入云的GTK1100
伸缩1.jpg
伸缩2.jpg
塔筒底部结构.jpg
回复 支持 反对

使用道具 举报

 楼主| 发表于 2013-5-7 21:18 | 显示全部楼层
检修施工中,叶片吊装
检修1.jpg
检修2.jpg
回复 支持 反对

使用道具 举报

 楼主| 发表于 2013-5-7 21:18 | 显示全部楼层
检修施工中,叶片吊装
回复 支持 反对

使用道具 举报

 楼主| 发表于 2013-5-7 21:28 | 显示全部楼层
叶片重56吨,施工靓图

绿荫
蓝天
白云

11.jpg
22.jpg
33.jpg
44.jpg
回复 支持 反对

使用道具 举报

发表于 2013-5-7 21:37 | 显示全部楼层
:victory::victory:
回复 支持 反对

使用道具 举报

发表于 2013-5-7 21:40 | 显示全部楼层
:victory::victory:
回复 支持 反对

使用道具 举报

发表于 2013-5-7 22:48 | 显示全部楼层
:victory::victory:
回复 支持 反对

使用道具 举报

 楼主| 发表于 2013-5-8 11:53 | 显示全部楼层
继续

转子的吊下需小心,有斜拉索保持叶片状态以避免碰撞
53968239g9957502f2eab&690&690.jpeg
53968239g99575043ab68&690&690.jpeg
53968239g9957500156a2&690&690.jpeg
53968239g9957509a0aa0&690&690.jpeg
回复 支持 反对

使用道具 举报

 楼主| 发表于 2013-5-9 10:02 | 显示全部楼层
拆解
53968239g995750ccf43d&690&690.jpeg
53968239g995750f57f1b&690&690.jpeg
53968239g995750faaaff&690&690.jpeg
回复 支持 反对

使用道具 举报

 楼主| 发表于 2013-5-11 12:30 | 显示全部楼层
:time::time:

整个塔身收缩完毕,耗时40分钟

整个塔身收缩完毕,耗时40分钟
回复 支持 反对

使用道具 举报

 楼主| 发表于 2013-5-11 12:31 | 显示全部楼层
:time::time:

清晰的上车结构

清晰的上车结构
回复 支持 反对

使用道具 举报

 楼主| 发表于 2013-5-11 12:33 | 显示全部楼层
这是第一代产品
后边的产品已经加配重了,配重自提升,重56吨
在后期的资料里会介绍
333.jpeg
回复 支持 反对

使用道具 举报

 楼主| 发表于 2013-5-11 12:47 | 显示全部楼层
四个支撑架拆除,不使用辅助起重机,

而直接用本体起重机,降低安装拆除费用

每个支撑架重2.9吨

444.jpg
555.jpg
666.jpg
777.jpg
777.jpg
888.jpg
999最后一根.jpg
拆除人员.jpg
回复 支持 反对

使用道具 举报

 楼主| 发表于 2013-5-11 12:48 | 显示全部楼层
四个支撑架拆除,不使用辅助起重机,

而直接用本体起重机,降低安装拆除费用

每个支撑架重2.9吨

回复 支持 反对

使用道具 举报

 楼主| 发表于 2013-5-17 11:29 | 显示全部楼层
GTK1100拆解转场,


GTK1100在风电安装领域大有作为,在国内它的卓越性能也得到完美展现。
伸缩塔桶底部结构.jpg
塔身拆下的工程电脑显示.jpg
躺下过程上车起重机始终保持水平.jpg
躺下过程中通过下部红色的液压件进行补偿.jpg
底部爬平过程中变幅与底部油缸的同步伸缩.jpg
整体爬平.jpg
上车部分.jpg
塔身放平 拆解上车 重约50吨.jpg
上车与塔身脱离.jpg
脱离.jpg
上车装车在6轴托板上.jpg
上车运输转场.jpg
GTK1100转场.jpg
回复 支持 反对

使用道具 举报

发表于 2013-5-17 11:40 | 显示全部楼层
好车啊
回复 支持 反对

使用道具 举报

 楼主| 发表于 2013-5-17 13:44 | 显示全部楼层
???????ﱟ?

GTK1100技术介绍

技术介绍1.jpg
技术介绍2.jpg
结束介绍3.jpg
技术介绍4.jpg
技术介绍5.jpg
技术介绍6.jpg
技术介绍7.jpg
结束介绍8.jpg
回复 支持 反对

使用道具 举报

 楼主| 发表于 2013-5-17 13:47 | 显示全部楼层
附 靓图
图一.jpg
图二.jpg
图三-可移动操控室.jpg
施工监控显示器.jpg
回复 支持 反对

使用道具 举报

 楼主| 发表于 2013-5-17 18:05 | 显示全部楼层
GTK1100起重性能之
卷扬参数
主卷扬:24mm钢丝绳,1070m长,单绳速度:130m/min,强度:120kN
副卷扬:24mm钢丝绳,750m长,单绳速度:130m/min,强度:120kN
卷扬参数.jpg
回复 支持 反对

使用道具 举报

发表于 2013-5-17 18:29 | 显示全部楼层
完美的杰作啊
回复 支持 反对

使用道具 举报

发表于 2013-5-18 18:00 | 显示全部楼层
好车,,,,
回复 支持 反对

使用道具 举报

 楼主| 发表于 2013-5-18 20:42 | 显示全部楼层
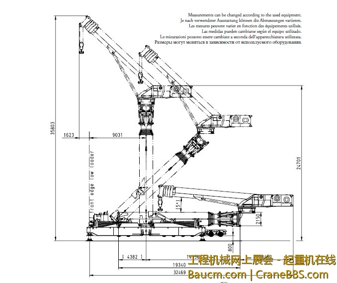
性能参数之

运输方案及运输重量

塔身运输图--7轴拖板车

塔身运输图--7轴拖板车

塔身运输尺寸、重量--含发动机

塔身运输尺寸、重量--含发动机

塔身独立运输-不含发动机

塔身独立运输-不含发动机

上车运输及支腿运输

上车运输及支腿运输

上车运输尺寸--含卷扬

上车运输尺寸--含卷扬

上车运输图

上车运输图

塔身运输尺寸

塔身运输尺寸

上车运输尺寸--不含卷扬

上车运输尺寸--不含卷扬
回复 支持 反对

使用道具 举报

 楼主| 发表于 2013-5-18 20:53 | 显示全部楼层
起立伸展,赫然一体
伸展图.jpg
起立伸展.jpg
回复 支持 反对

使用道具 举报

 楼主| 发表于 2013-5-20 13:47 | 显示全部楼层


      最优化的运输方案---------------最多只要5辆拖车即可完成运输及转场

特别适合长距离运输。同等起重能力的履带吊必须十几台才能完成运输及转场,节约了大量的运输成本!

最优化的运输方案-------最多5辆拖车.jpg
回复 支持 反对

使用道具 举报

 楼主| 发表于 2013-5-20 20:54 | 显示全部楼层
Go on  

安装简图

组装1.jpg
组装2.jpg
组装3.jpg
组装4.jpg
组装5.jpg
组装6.jpg
组装7.jpg
超起装置---即配重结构.jpg
配重共56吨.jpg
回复 支持 反对

使用道具 举报

 楼主| 发表于 2013-5-20 21:16 | 显示全部楼层
霸气美图
暮色下的GTK1100.jpg
霸气照.jpg
回复 支持 反对

使用道具 举报

发表于 2013-5-20 21:51 | 显示全部楼层
好车,风电高手,风电专用吧!
回复 支持 反对

使用道具 举报

 楼主| 发表于 2013-5-21 08:43 | 显示全部楼层
王志萍 发表于 2013-5-20 21:51 static/image/common/back.gif
好车,风电高手,风电专用吧!

更适合风电用,但是转场比较麻烦
回复 支持 反对

使用道具 举报

发表于 2013-5-21 18:22 | 显示全部楼层
yuansl 发表于 2013-5-1 15:46 static/image/common/back.gif
当四个2米高的支腿安装完成后,会形成一个巨大的18*18平米的支撑面。
支腿可以通过两个插销快速方便的安装 ...

HELLO 你做什么的
回复 支持 反对

使用道具 举报

 楼主| 发表于 2013-5-21 22:29 | 显示全部楼层
lhb86 发表于 2013-5-21 18:22 static/image/common/back.gif
HELLO 你做什么的

小弟我待业,呵呵
回复 支持 反对

使用道具 举报

 楼主| 发表于 2013-5-22 09:39 | 显示全部楼层
超越1200的起重性能

起重性能1.jpg
起重性能2.jpg
图.jpg
短距离转场.jpg
回复 支持 反对

使用道具 举报

 楼主| 发表于 2013-5-27 23:33 | 显示全部楼层
近距离转场比较麻烦一点,相对于LTM11200
回复 支持 反对

使用道具 举报

您需要登录后才可以回帖 登录 | 注册会员

本版积分规则

Archiver|手机版|工程机械与起重机BBS ( 沪ICP备2025134921号 )

GMT+8, 2026-4-26 15:55 , Processed in 1.217779 second(s), 19 queries .

Powered by Discuz! X3.4

© 2001-2023 Discuz! Team.

快速回复 返回顶部 返回列表